Villa Bukit Naga
- 2 Piscinas Infinity
- A pocos minutos en coche de Ubud
- Las impresionantes vistas del volcán y el valle del río
- Instalaciones Gimnasio
- Villa ideal para familias y grupos de amigos
- Descripción
- Galería de fotos
- Reservar ahora
- Precios y Condiciones
- localización
- Comodidades
- Servicios
- Plan de piso y Videos
- Villas Similares
- Descripción
- Galería de fotos
- Reservar ahora
- Precios y Condiciones
- localización
- Comodidades
- Servicios
- Plan de piso y Videos
- Villas Similares
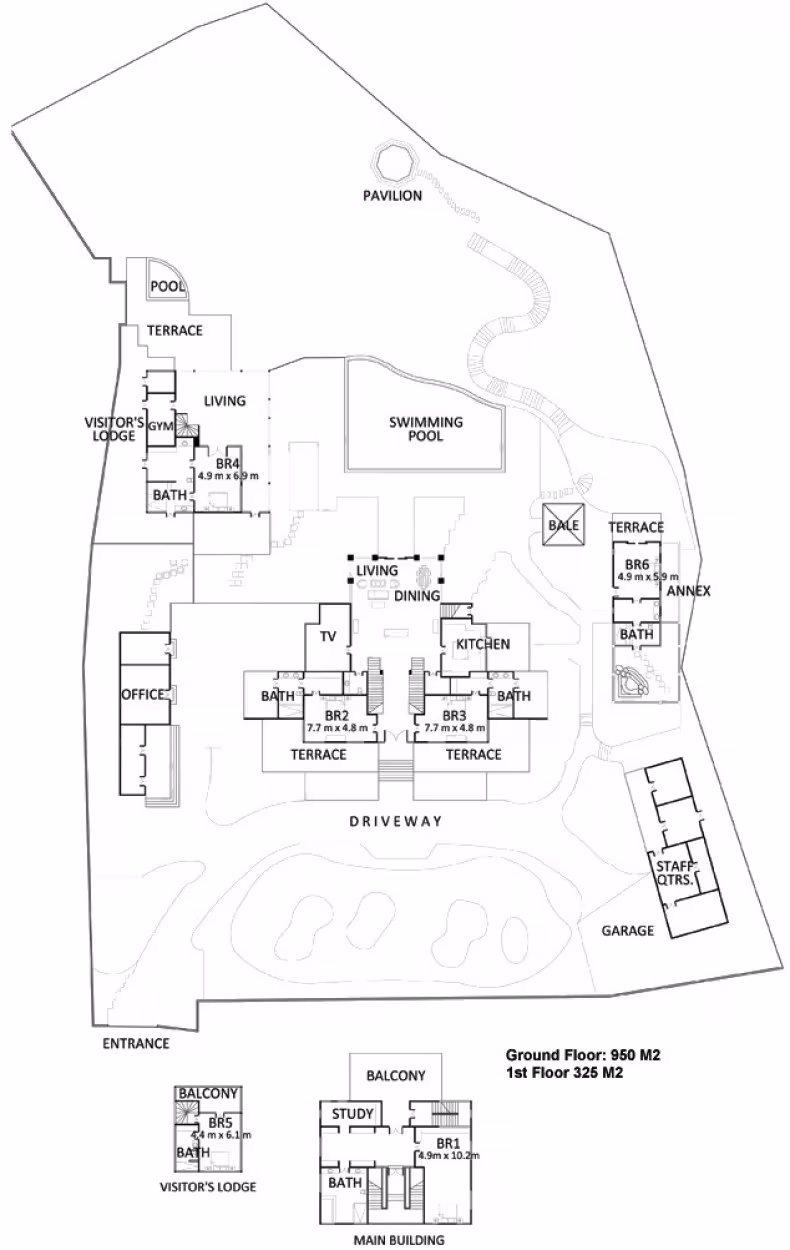
La Villa Bukit Naga es una propiedad única situada en lo alto de una colina cerca de Ubud, con vistas a un valle donde confluyen dos ríos sagrados. El complejo Bukit Naga cuenta con 7 habitaciones distribuidas en 3 elegantes edificios y ofrece un alojamiento lujoso para hasta 13 huéspedes. La Villa Bukit Naga tiene la mayor proporción de personal por huésped de cualquier villa privada en Bali: 15 empleados a tiempo completo para atender a un máximo de 13 personas. Gracias a su absoluta privacidad, es una de las villas de alquiler favoritas entre celebridades y líderes de la industria. No está posicionada por satélite, lo que significa que no puede encontrarse en Google Earth ni en sistemas GPS.
Un equipo de 15 personas atenderá todas sus necesidades. Dos chefs preparan platos internacionales o especializados, desde cocina occidental hasta delicias asiáticas, utilizando productos orgánicos cultivados en nuestro propio jardín. Dos conductores están disponibles para llevarle desde las montañas hasta las playas, para disfrutar de excursiones a volcanes, sesiones de surf, días de relax en la arena, así como para jugar al golf, hacer ciclismo o recorrer los tradicionales pueblos balineses.
Disfrute de clases de cocina, sesiones de yoga, masajes y otros tratamientos de spa en la privacidad de la Villa Bukit Naga.
Todo el complejo cuenta con conexión Wi-Fi, disponible en todas las habitaciones y en la zona de la piscina.
La propiedad está compuesta por 3 villas con un total de 7 habitaciones (6 de ellas con baño privado), una piscina infinita de 15 metros, una piscina de inmersión infinita, un gimnasio, Wi-Fi, una sala de entretenimiento con televisión por satélite y una colección de más de 600 DVD, aire acondicionado central, un total de 5 edificios, 2 bales exteriores, 4 duchas al aire libre privadas, un jacuzzi, 5 balcones, varios sistemas de sonido y bases para iPod, así como amplios jardines.
UBICACIÓN
Bukit Naga está situado a pocos minutos de Ubud, la capital cultural de Bali. Los huéspedes pueden disfrutar de una gastronomía de primer nivel tanto en la villa como en restaurantes galardonados como Mozaic. Nuestro servicio de concierge organizará excursiones de compras, visitas a galerías de arte y museos, así como muchas otras actividades.
Recientes Comentarios de los clientes:
Padillia - Philippines - rented Villa Bukit Naga in February 2014:
"
MANY THANKS
"
We'd like to let you know that we had a fabulous 4-day stay at Villa Bukit Naga. On behalf of Ms Florentino and our friends, many thanks. Do extend our good wishes to Parta and his staff and the Villa owners. They've done a good job creating such a beautiful holiday setting. Who knows, we may have another opportunity for a visit.
Dorothy. - Singapore - rented Villa Bukit Naga in April 2013:
"
A HIDDEN GEM!
"
Tucked away on the slopes of a river, the verdant surroundings of the Villa strikes you upon arrival. Lush vegetation, with no evidence of being overly manicured gives the estate the feel of being set in nature. There is a charm about the villa, it feels like home! The rooms are clean and bathrooms are enormous! One needs to get used to the choir of nature... birds, frogs, geckos 'singing' continuously in the background. Food is sumptuous. A trio of chefs manage the kitchen that is well fitted with industrial standard equipment. Freshly made bread & croissants for breakfast; eggs done anyway you like; rijstafel dinner; western meals that can rival a top class restaurant. The list goes on.
It is the perfect base to rest and revitalize oneself after exploring all the sights of bustling Ubud. A well chilled lemongrass drink ( home made, of course!) , an in- villa massage; a dip in the infinity pool and one should be ready for dinner with fine dining. Life does not get any better!
| Temporada Baja | Temporada Media | Temporada Alta | |
| 6 Habitaciones | $1,300 / Noche | $1,500 / Noche | $1,700 / Noche |
| Estadía mínima | 3 Noches | 4 Noches | 4 Noches |
Las tarifas están expresadas en dólares americanos por noche y están sujetas a 11% de los impuestos locales. Las tarifas son válidas hasta el 08 El Enero, 2027 AM.
| Dates | Seasons | ||
| 09 El Enero, 2026 | — | 27 El Marzo, 2026 | Temporada Baja |
| 27 El Marzo, 2026 | — | 13 El Abril, 2026 | Temporada Media |
| 13 El Abril, 2026 | — | 15 El Junio, 2026 | Temporada Baja |
| 15 El Junio, 2026 | — | 22 El Agosto, 2026 | Temporada Media |
| 22 El Agosto, 2026 | — | 21 El Diciembre, 2026 | Temporada Baja |
| 21 El Diciembre, 2026 | — | 09 El Enero, 2027 | Temporada Alta |
| 09 El Enero, 2027 | — | 01 El Marzo, 2028 | Temporada Baja |
(5.8 km) Un santuario en el corazón del Ubud tradicional, Villa Crystal Castle con 7 habitaciones con aire acondicionado rodeadas de campos de arroz es la villa de retiro perfecta en Bali en una ubicación impresionante a solo 10 minutos en coche del centro de Ubud. Villa Crystal Castle cuenta con una gran piscina de 18 x 5 metros, un gran Yoga Shala, un pabellón de tratamiento de spa, todo dentro del generoso jardín tropical de 4600 m2.
Fácil y Cómodo
Vamos a responder a todas sus preguntas por e-mail dentro de las 24 horas. También puede utilizar el chat integrado en nuestro sitio web, o póngase en contacto con nosotros por teléfono o skype en horario de oficina.
|
Se aceptan pagos mediante transferencias bancarias (TT) en US$ o por Visa y MasterCard.
|
35 minutos (14.8 km) en coche a Cultural town of Ubud, 80 minutos (40.5 km) en coche a Canggu Night Life, 65 minutos (41 km) en coche a Bali's Ngurah Rai International Airport.